保定国控置业凤锦苑项目建设工程规划公示
搜狐焦点保定站 2024-08-27 10:02:50
用手机看
扫描到手机,新闻随时看
扫一扫,用手机看文章
更加方便分享给朋友
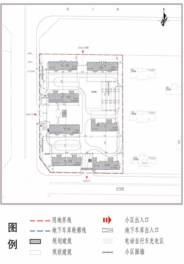
保定市国控置业开发有限责任公司拟在保定市北二环南、锦湖北大街东建设凤锦苑项目。建设单位已委托设计单位按城市规划要求、相关规定、建筑设计规范等进行方案设计,现将总平面图及效果图予以公示。
保定市国控置业开发有限责任公司拟在保定市北二环南、锦湖北大街东建设凤锦苑项目。建设单位已委托设计单位按城市规划要求、相关规定、建筑设计规范等进行方案设计,现将总平面图及效果图予以公示。
公示时间自2024年8月26日至9月4日,如有不同意见或建议,请于公示期内通过书面或电话形式反馈,并提供身份及产权证明文件和联系电话。
保定市自然资源和规划局
监督电话:5902600
建设单位电话:5892167
(注:如果对公示内容有不明确的,请向建设单位咨询)
声明:本文由入驻焦点开放平台的作者撰写,除焦点官方账号外,观点仅代表作者本人,不代表焦点立场。



