保定凤锦苑项目建设工程设计方案公示
搜狐焦点保定站 2024-11-04 14:21:32
用手机看
扫描到手机,新闻随时看
扫一扫,用手机看文章
更加方便分享给朋友
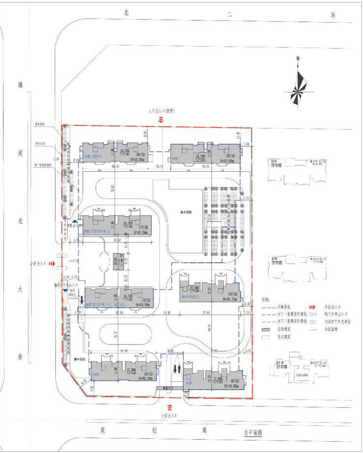
《凤锦苑建设工程设计方案》获市规委审议通过,位于北二环南、锦湖北大街东,规划用地面积29.26亩,总建筑面积约7.47万平方米,地上建筑面积约4.91万平方米,地下建筑面积约2.56万平方米。
由清华大学建筑设计研究院有限公司编制的《凤锦苑建设工程设计方案》,经保定市国土空间规划委员会2024年第二次专题会议审议通过。现将规划方案予以公布。
凤锦苑位于北二环南、锦湖北大街东,规划用地面积19504,70㎡(约29.26亩)规划用地性质为居住用地,总建筑面积约7.47万平方米,其中:地上建筑面积约4.91万平方米,地下建筑面积约2.56万平方米,其他控制指标均符合规划要求。
声明:本文由入驻焦点开放平台的作者撰写,除焦点官方账号外,观点仅代表作者本人,不代表焦点立场。



