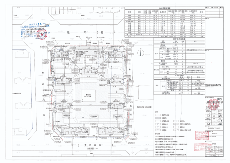
保定华中·拾光华邑小区项目建设工程规划批后公布
搜狐焦点保定站 2025-05-12 14:37:41
用手机看
扫描到手机,新闻随时看
扫一扫,用手机看文章
更加方便分享给朋友
来源:保定市高新区自然资源和规划局…




来源:保定市高新区自然资源和规划局
声明:本文由入驻焦点开放平台的作者撰写,除焦点官方账号外,观点仅代表作者本人,不代表焦点立场。
扫一扫,用手机看文章
更加方便分享给朋友




来源:保定市高新区自然资源和规划局
声明:本文由入驻焦点开放平台的作者撰写,除焦点官方账号外,观点仅代表作者本人,不代表焦点立场。
正在加载中,请稍后...